Navigation
System interconnection
The UCC2 provides a simple means of interconnecting many of the sub-systems (e.g. a probe head) in a measuring system. The purpose of this chapter is to illustrate some system configurations.
2-wire touch-trigger probe system

PH10 probe head and 2-wire touch-trigger probe system

PH10 probe head and multiwire probe system

PH10 probe head, multiwire probe system and ACR1

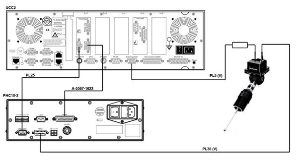
PH10 probe head and multiwire probe system using external PHC10-2

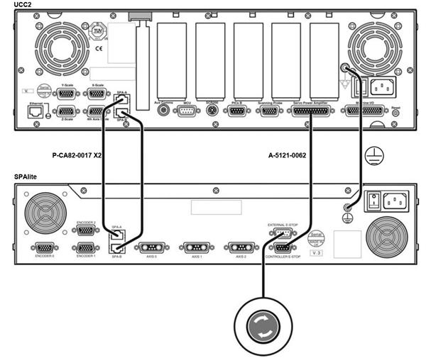
UCC2 and SPAlite

UCC2 and SPA2-2
